建设工程设计方案公示
1.建设单位:普宁市流沙西街道中心幼儿园
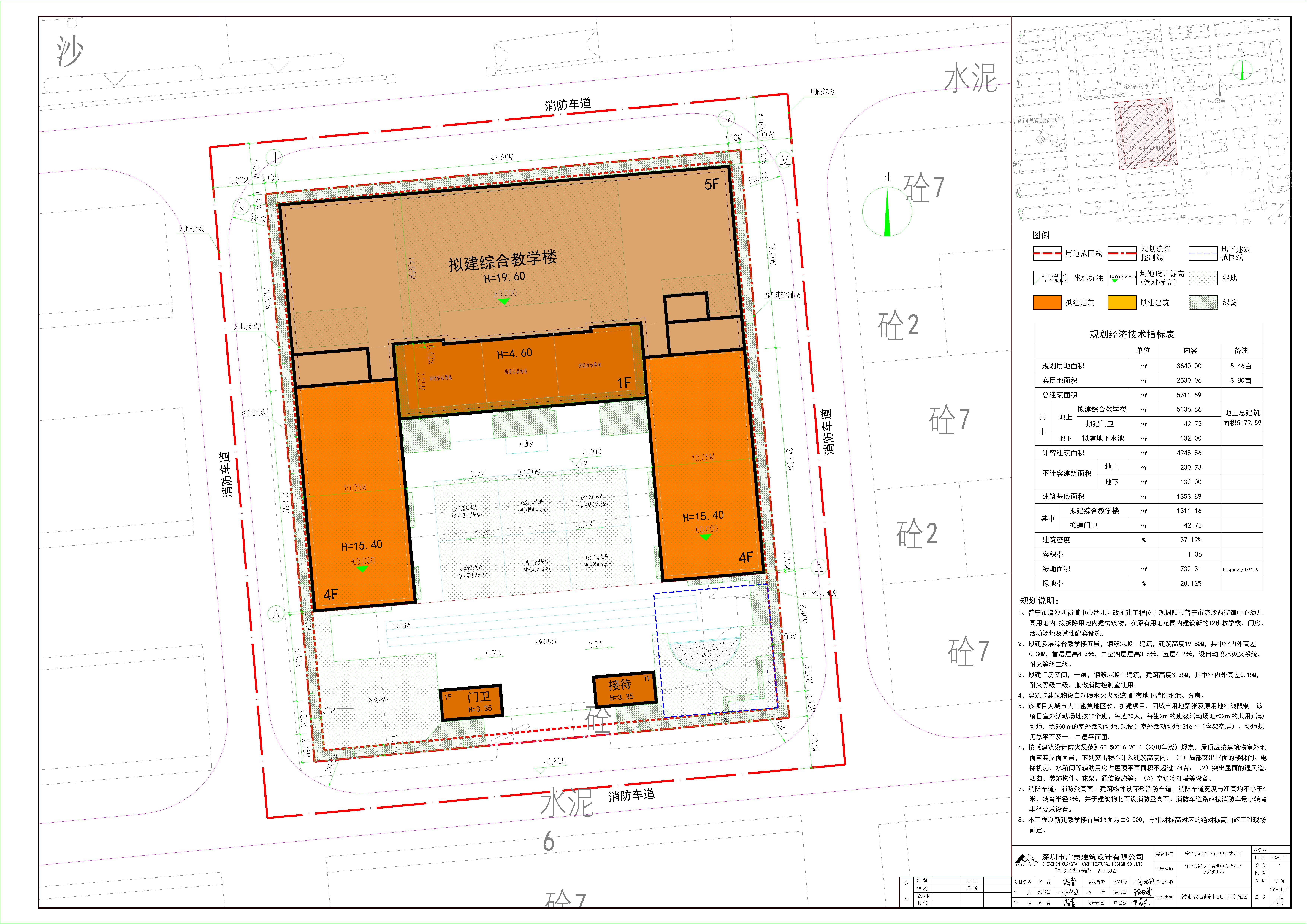
2.项目名称:普宁市流沙西街道中心幼儿园改扩建工程
3.项目位置:赤华南路东侧
4.用地面积:3640㎡
5.建设规模:1幢5层综合教学楼、1层门卫房,总建筑面积5311.59㎡(其中地下水池、泵房132㎡)。
6.公示时间:2020年11月17日至2020年11月26日
如对该建设工程设计方案有意见、建议,请于公示期限内向普宁市自然资源局提出。
普宁市自然资源局地址:普宁市区河滨北路赵厝寮路段
电子邮箱:pn_cjj@163.com
公示网站:http://www.puning.gov.cn/jypnzrj/gkmlpt/index
联系人:李先生 联系电话:2939978
普宁市自然资源局
2020年11月17日

附件:
1.总平面图.jpg