建设工程设计方案公示
建设单位:普宁市乐乐兴服饰有限公司
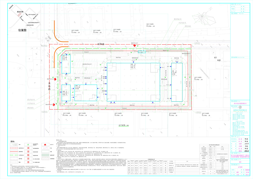
项目名称:普宁市乐乐兴数字化智能生产、品牌云仓、自动 化供应链物流一体化服饰智慧产业园
项目位置:普宁市科技园内,金池路东北侧
用地面积:18364.45平方米(27.55亩)
建设规模:1栋12层高层厂房、2栋6层多层厂房、1栋12层高层宿舍楼、1栋15层高层研发楼、1栋1层门卫房,总建筑面积73940.74㎡,其中计容建筑面积72010.03㎡。
公示时间:2025年12月18日至 2025年12月28日
如对该建设工程设计方案调整事项有意见、建议,请于公示期限内向普宁市自然资源局提出。
普宁市自然资源局地址:普宁市区河滨北路赵厝寮路段
电子邮箱:pnzzjgh@163.com
公示网站:http://www.puning.gov.cn/jypnzrj/gkmlpt/index
联系人:王先生 联系电话:2939978
普宁市自然资源局
2025年12月18日
